Používáme cookies k optimalizaci našich webových stránek a našich služeb. Další informace o cookies najdete zde.

Nastavení


Prodej bytu 2+KK Strašnice,  metro Skalka         Kupní cena 6.980.000 Kč

Prodej bytu 2+KK Strašnice, metro Skalka Kupní cena 6.980.000 Kč

Popis nemovitosti

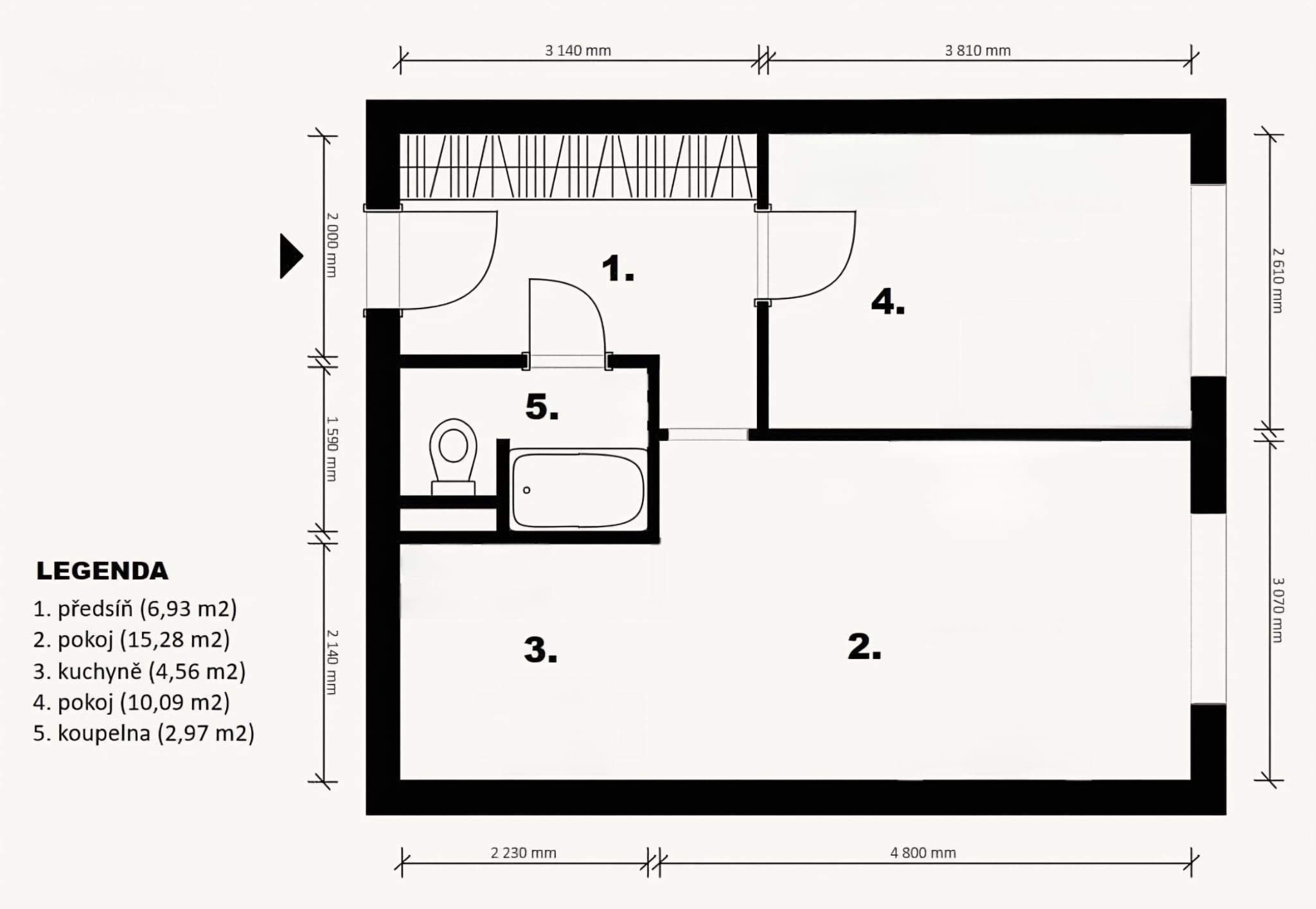
Nabízíme k prodeji byt 2+kk o celkové ploše 43,13 m², který se nachází ve 3. patře panelového domu s výtahem v klidné části Prahy 10 – Strašnice, přibližně 6 minut chůze od stanice metra Skalka.

Byt má jižní orientaci oken, díky čemuž je příjemně světlý. Dispozice nabízí obývací část s kuchyňským koutem, samostatnou ložnici, koupelnu se sprchovým koutem a praktické úložné prostory.

Součástí bytu je sklepní kóje a k dispozici je také komora na patře, která poskytuje další úložný prostor.

V bytě byla instalována nová kuchyňská linka, nové interiérové dveře a plovoucí podlahy. Byt se nachází v udržovaném panelovém domě s bezbariérovým přístupem.

Byt je aktuálně pronajímán s možností pokračování nájemního vztahu pro investičního kupujícího, případně uvolnění bytu dle dohody.

Základní informace

 

Dům je ve velmi dobrém technickém stavu a je průběžně udržován.
Společenství vlastníků hospodaří bez úvěru a disponuje dostatečnou rezervou ve fondu oprav (cca 7,5 mil. Kč). V nejbližší době je plánována oprava střechy, která bude hrazena z naspořených prostředků.

V minulých letech proběhla postupná modernizace domu, mimo jiné výměna oken, zateplení, rozvodů a společných instalací. Dům není zatížen žádným úvěrem a aktuálně se o jeho čerpání neuvažuje.

Příspěvek do fondu oprav činí cca 30 Kč / m²

 

Strašnice patří mezi velmi vyhledávané části Prahy díky výborné dostupnosti do centra a kompletní občanské vybavenosti. Stanice metra Skalka je vzdálena přibližně 6 minut chůze. V okolí se nachází obchody, restaurace, školy, školky i zeleň pro volnočasové aktivity.

Byt je vhodný jak pro vlastní bydlení, tak jako investice k pronájmu.

Kontaktní formulář

Stáhnout PDF